Porzione di trifamiliare in vendita

Volvera, Via Venezia - Gerbole-Zucche
€ 219.000
4 locali 4 locali
100 Mq 100 Mq
1 bagno 1 bagno

Porzione di trifamiliare in vendita

Volvera, Via Venezia - Gerbole-Zucche

Descrizione annuncio

IMMOBILE ATTUALMENTE IN TRATTATIVA-

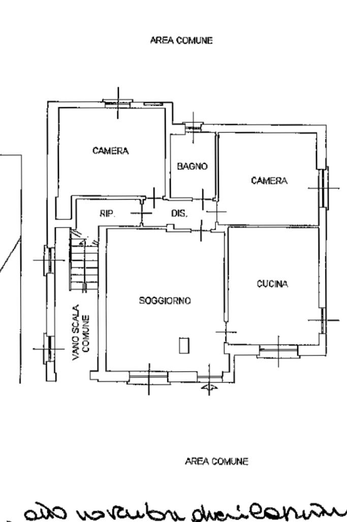
n zona immersa nel verde ma comunque residenziale, l’appartamento fa parte di un complesso di sole tre unità abitative e si trova al piano terra.
Dotato di un accesso indipendente, l’immobile si sviluppa tutto su unico piano. Il soggiorno è luminoso e comodamente fruibile, la cucina è abitabile e ha sfogo diretto tramite porta finestra sul giardino privato di circa 150 mq.
La zona notte è composta da due camere da letto, il bagno è con doccia. E’ presente il ripostiglio.

Gli infissi sono in PVC con triplo vetrocamera, dotati di zanzariere, e le serrande sono motorizzate. Ci sono due condizionatori uno nel soggiorno e uno in cucina ed è presente la predisposizione per l’antifurto.

L’area esterna privata in parte verde e in parte terrazzata è dotata di impianto di irrigazione, illuminazione e punto acqua.

Il riscaldamento è autonomo e la caldaia è a condensazione.

Soluzione ideale per chi cerca la tranquillità.

Mostra tutto

Nelle vicinanze

Trasporto pubblico Trasporto pubblico
Gerbole di Volvera
Gerbole di Volvera
300 m
Laura Vicuna Cap.
Laura Vicuna Cap.
1,8 Km
Scuole Scuole
Scuole
2,0 Km
Istituto Istruzione Superiore "Amaldi-Sraffa"
2,4 Km
Scuola Elementare Anna Frank
2,5 Km
Asilo Nido
2,9 Km
Scuola Media Leonardo da Vinci
3,0 Km
Farmacia Farmacia
Farmacia Comunale 23
380 m
Farmacia
2,2 Km
Supermercati Supermercati
Eurospin
2,4 Km
Coop
2,8 Km
Negozi Negozi
Piano Giovanni -Stock abbigliamento
2,4 Km
Culasso
2,8 Km
Bar Bar
Tabacaffe
290 m
Ristoranti Ristoranti
Tenuta Canta
780 m
Ristoranti
2,3 Km
Au chat qui rit
2,3 Km
Pistrocchio
2,8 Km
Mostra tutto

Caratteristiche

Rif.:
61088516
Piano:
Terra con giardino di 3
Totale piani:
3
Terrazzi:
1
Camere da letto:
2
Arredamento:
Assente
Mostra tutto
Prezzo Prezzo
€ 219.000
Rata mutuo Rata mutuo
€ 1.034 / mese
Spese annue Spese annue
€ 0
Proponi il tuo prezzoProponi il tuo prezzo

Classe Energetica

D
D
D
D
D
D
D
D
D
EP globale non rinnovabile:
181.31 kW h/m² anno
EP globale rinnovabile:
3.11 kW h/m² anno
EP invernale del fabbricato:
EP estiva del fabbricato:
Anno di costruzione:
1983
Riscaldamento:
Autonomo
Tipo impianto:
A radiatori
Tipo alimentazione:
Metano

Ti interessa visionare l'immobile?

Fissa un appuntamento  Fissa un appuntamento

Richiedi informazioni

Clicca su Leggi per aprire l'informativa
* Questi campi sono obbligatori

Calcola il tuo mutuo

Semplice e senza impegno
Anticipo

( % )
Mutuo

( % )

pochi semplici passi

inserisci i tuoi dati
Questionario completato
Grazie per aver richiesto un appuntamento senza impegno con un nostro Consulente del Credito e Assicurativo.

Hai inserito correttamente tutti i dati necessari e a breve riceverai una e-mail con un link da convalidare per inviare i tuoi dati.
Affiliato
Studio Volvera Sas
Via Ponsati, 47/A 10040 Volvera (TO)

Il nostro staff


  • Kristal Aiello
    Affiliato

  • Christian Caschetto
    Collaboratore

  • Gabriele Garuccio
    Collaboratore

  • Martina Pili
    Coordinatrice

  • Maria Cristina Tripepi
    Coordinatrice
Via Ponsati, 47/A 10040 Volvera (TO)
Zona: Volvera
Mostra su mappa
Orari: Dal lunedì al venerdì dalle 9:00 alle 12:30 e dalle 15:00 alle 19:30. Sabato dalle 9:00 alle 12:30 e dalle 15:00 alle 17:00.
Affiliato
Studio Volvera Sas
Via Ponsati, 47/A 10040 Volvera (TO)

2025 Tecnocasa Franchising S.p.A. - P. IVA 08365160152 - Via Monte Bianco 60/A 20089 Rozzano (MI). Ogni agenzia ha un proprio titolare ed è autonoma. Privacy policy | Policy utilizzo | Cookie policy